スカイズタワー&ガーデン

マンション

39万円

室内設備は全居室フローリング・脱衣所・グリル付などが揃っており、とても充実しています。日中は管理人さんがいるので安心。新しい日々を送るにふさわしい、きれいな室内です。三口コンロが付いたマンションです。引っ越しの希望日などあればお伝えください。対応させていただきます。快適な生活を実現してくれる要素の一つに、住まいというものがあるのだと思います。当社に住まい探しのお手伝いをさせて下さい。

【外観】

【外観】

1/

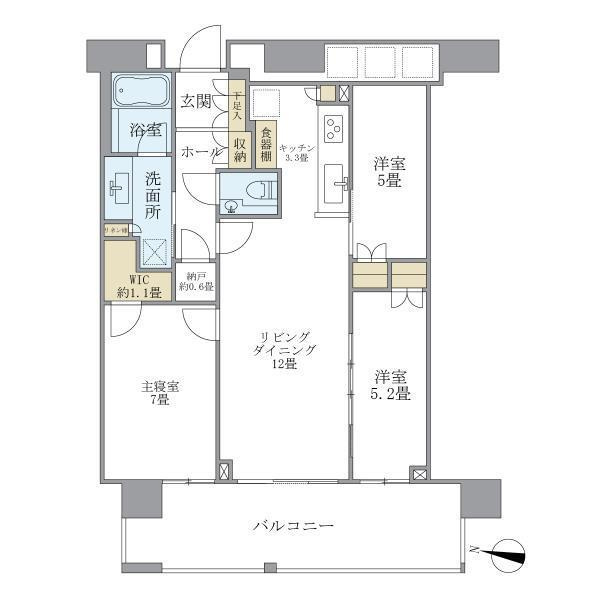
【間取り】

2/

別部屋参照

【居間・リビング】別部屋参照

3/

別部屋参照

【洋室】別部屋参照

4/

別部屋参照

【寝室】別部屋参照

5/

別部屋参照

【キッチン】別部屋参照

6/

別部屋参照

【風呂】別部屋参照

7/

別部屋参照

【トイレ】別部屋参照

8/

別部屋参照

【独立洗面台】別部屋参照

9/

別部屋参照

【収納】別部屋参照

10/

別部屋参照

【設備】別部屋参照

11/

【共用部分】

【共用部分】

12/

【エントランス】

【エントランス】

13/

【ロビー】

【ロビー】

14/

別部屋参照

【その他】別部屋参照

15/

【外観】

別部屋参照

別部屋参照

別部屋参照

別部屋参照

別部屋参照

別部屋参照

別部屋参照

別部屋参照

別部屋参照

【共用部分】

【エントランス】

【ロビー】

別部屋参照

お問い合わせ先

ロイヤルハウジング販売株式会社

勝どきビュータワー店

0120-40-6186

営業時間9:00~20:00

定休日無(年末年始休暇を除く)

この物件についてお問い合わせ 見学予約
所在地 東京都江東区豊洲6丁目2-31 交通 ゆりかもめ「新豊洲」駅 徒歩6分
築年 築11年 階数 20階/45階建
賃料 39万円 管理費・共益費 15,000円
間取り 3LDK 面積 73.97㎡/22.37坪

パノラマビュー

物件情報

物件特徴

  • エレベーター

  • 追い焚き機能

  • ウォークインクローゼット

  • オートロック

  • TVモニタ付きインターホン

  • 24時間有人管理

  • LDK15帖以上

  • クロゼット2ヶ所

物件詳細

情報の見方
所在地 東京都江東区豊洲6丁目2-31地図を見る
交通
間取り/詳細 3LDK
LDK 15.3帖/洋室 7.0帖/洋室 5.2帖/洋室 5.0帖
面積/バルコニー面積 73.97㎡/-
賃料 39万円 管理費・共益費 15,000円
敷金/礼金/保証金 1ヶ月/1ヶ月/- 償却/敷引 -/-
更新料 - 敷金積み増し -
権利金/雑費 -/- 駐車場/月額料金 -/ 駐車場費用_料金最大価格:30000
保険加入/料金 有/- 保険期間 -
保証人代行義務/利用料 必加入/ 初回保証委託料:月額総賃料の50% 月額:月額賃料の1% 保証会社 その他
保証会社詳細 初回保証委託料:月額総賃料の50% 月額:月額賃料の1% 向き 西
築年月(築年数) 2014年 8月 (築11年) 契約期間 定期借家 4年
種別/構造 マンション/鉄筋コンクリート 部屋/所在階/階建 2009/ 20階/ 45階建 地下2階
総戸数 - 現況/入居可能日 居住中/相談
特優賃 - 取引態様/賃貸区分 仲介/定期借家権
取引条件の有効期限 2026年03月29日 物件番号 101473365
物件番号 101473365
設備条件
  • 保証人不要
  • 2人入居可
  • キッズルーム
  • 分譲タイプ
  • 法人可
  • カップル向け
  • 新婚さん向け
  • ファミリー向け
  • 室内洗濯機置場
  • フローリング
  • バルコニー付
  • 都市ガス
  • 公営水道
  • 公共下水
  • 24時間換気システム
  • エレベーター
  • ガスコンロ
  • コンロ2口以上
  • システムキッチン
  • コンロ3口
  • バス・トイレ別
  • 追焚機能浴室
  • 浴室乾燥機
  • 温水洗浄便座
  • シャワー
  • 独立洗面台
  • 浴槽
  • エアコン付
  • ウォークインクロゼット
  • シューズボックス
  • 収納豊富
  • オートロック
  • TVモニタ付インターホン
  • 宅配ボックス
  • 防犯カメラ
  • 24時間有人管理
  • フロントサービス
  • 24時間ゴミ出し可
  • コンシェルジュサービス
条件(その他) T-SupportClub会費:1万9,800円  鍵交換代:3万9,600円
備考 セキュリティ面は、防犯カメラ・24時間有人管理などを備え付けているので安心して暮らせます。共用部にはコンシェルジュサービス・エレベータ2基などが備わっておりとても充実しています。室内設備は追い焚き・エアコン・システムキッチンなど充実した設備を備え付けています。当社スタッフが地域の賃貸情報をご提供いたします。お客様のこだわりやご要望などございましたら、お気軽に当社へお問い合わせ下さい。
取扱会社
  • ロイヤルハウジング販売株式会社   勝どきビュータワー店
  • 東京都中央区勝どき1丁目8-1 勝どきビュータワー B1階 (A4a出口出てすぐ)
  • TEL:0120-40-6186
  • 国土交通大臣 (11) 第3229号
  • (一社)全国住宅産業協会会員
    (公社)全日本不動産協会会員
    (公財)東日本不動産流通機構会員
    (公社)首都圏不動産公正取引協議会加盟
    (公社)不動産保証協会会員

情報更新日:2026年03月15日 次回更新予定日:2026年03月29日

※価格は物件の代金総額を表示しており、消費税が課税される場合は税込と表記の上、税込価格で表示して おります。

※間取りの「S」はサービスルーム(納戸)です。

※現況と異なる場合には現況を優先します。

周辺地図

※地図上に表示される物件の位置は付近住所に所在することを表すものであり、実際の物件所在地とは異なる場合があります。

※地図に表示される施設が実際の施設と異なる場合があります。

周辺環境写真

  • 江東区立豊洲西小学校

    江東区立豊洲西小学校まで 約645m/9分

  • ダイエー豊洲店

    ダイエー豊洲店まで 約546m/7分

  • ファミリーマート 豊洲スカイズ店

    ファミリーマート 豊洲スカイズ店まで 約12m/1分

  • ファミリーマート 豊洲スカイズ店

    ファミリーマート 豊洲スカイズ店まで 約366m/5分

  • ナチュラルローソン昭和大学江東豊洲病院店(売店)

    ナチュラルローソン昭和大学江東豊洲病院店(売店)まで 約776m/10分

周辺情報

江東区立豊洲西小学校まで 約645m/9分

ダイエー豊洲店まで 約546m/7分

ファミリーマート 豊洲スカイズ店まで 約12m/1分

ファミリーマート 豊洲スカイズ店まで 約366m/5分

ナチュラルローソン昭和大学江東豊洲病院店(売店)まで 約776m/10分

担当者画像

担当者コメント

共用部にはフロントサービス・エレベータ2基など様々な設備やサービスが揃っているので便利です。セキュリティ面は、防犯カメラ・24時間有人管理などを設置しているので安全面でも優れております。室内設備はエアコン・追い焚き・システムキッチンなど豊富に揃っており、過ごしやすいお部屋になっております。電車での移動がより便利になる、2駅利用可能な物件です。全居室フローリングなので静電気が発生しにくくなっています。こちらは20階にあるお部屋です。これから先、どんな暮らしを実現していきたいですか。新しい住まいでハリのある生活を送っていきましょう。お問い合わせもお気軽にご連絡ください。

お問い合わせ先

ロイヤルハウジング販売株式会社勝どきビュータワー店

お電話でのお問い合わせ

03-6864-1811

営業時間9:00~20:00

定休日無(年末年始休暇を除く)

WEBからのお問い合わせ

この物件について問い合わせ 見学予約

お問い合わせ先

ロイヤルハウジング販売株式会社
勝どきビュータワー店

03-6864-1811